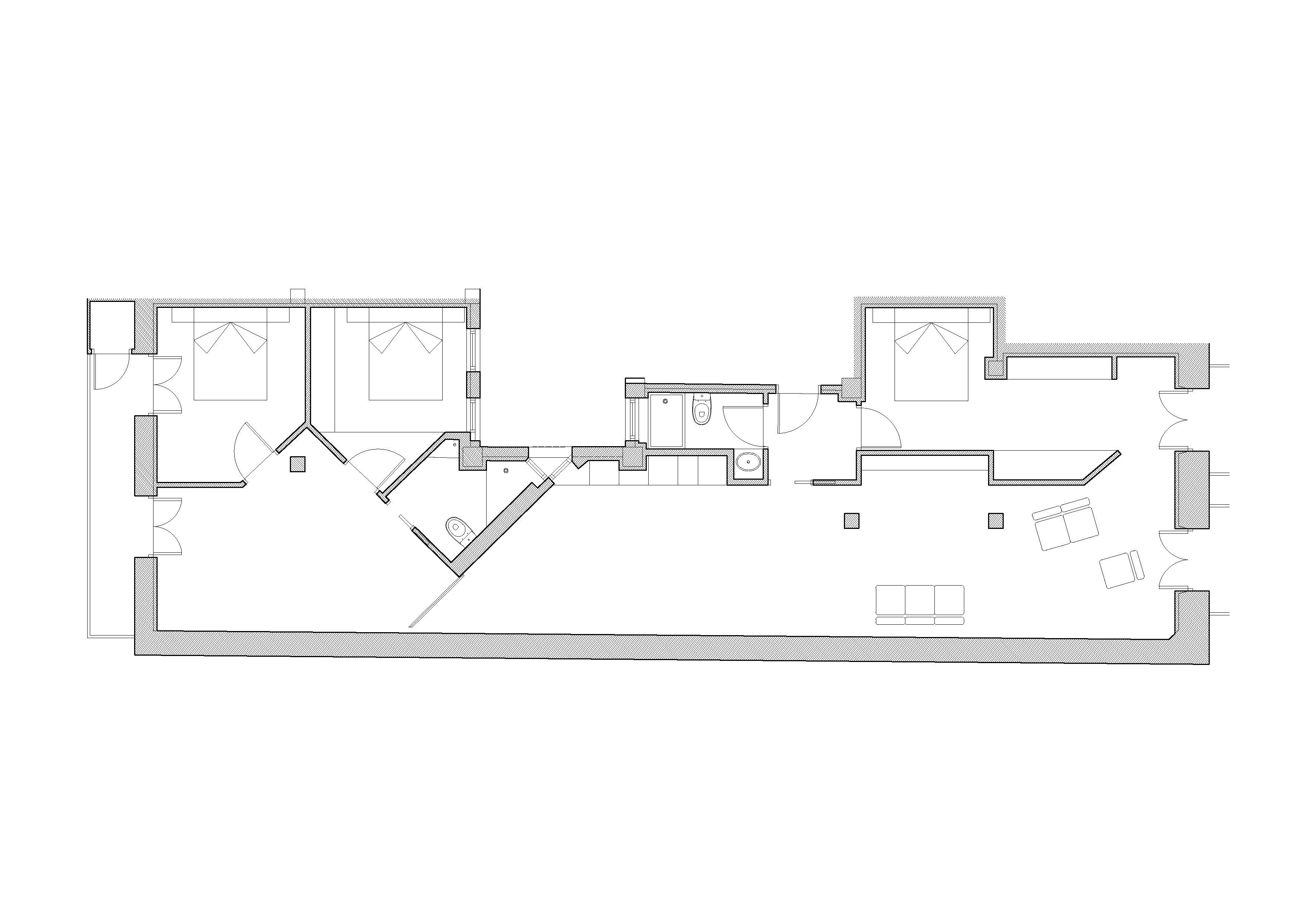
Conseguimos integrar la tabiquería de todas las habitaciones en una zigzag ininterrumpido de madera y cristal que hizo compatible el concepto del espacio continuo de un loft urbano con la compartimentación del espacio en habitaciones independientes.

Integramos la tabiquería de todas las habitaciones en un zigzag ininterrumpido de madera y cristal que hizo compatible el concepto del espacio continuo de un loft urbano con la compartimentación del espacio en habitaciones independientes.