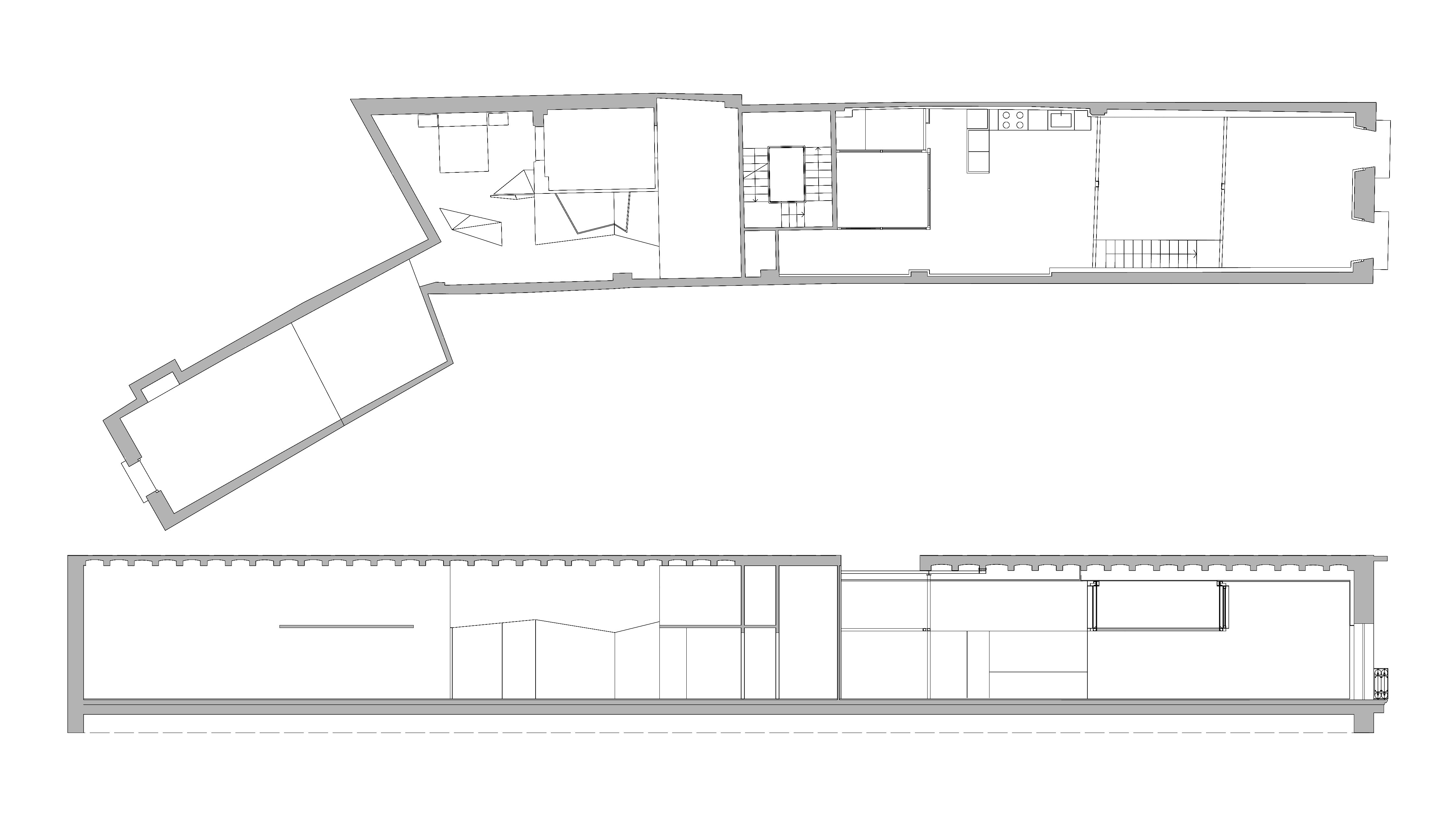
Al disponer de iluminación directa solamente desde una fachada se construyó una ligerísima estructura de vidrio y acero para alojar el dormitorio, flotando sobre un espacio único que integra cocina comedor y sala de estar.
Esta vivienda solo dispone de dos fuentes indirectas de luz natural, situadas en sus dos extremos: patio interior y fachada norte a la calle. Aprovechar al máximo la escasa luz natural fue la clave de este proyecto.
Proyectamos y construimos una ligerísima estructura de acero que eleva una única habitación de vidrio; al estar elevada y centrada, deja libre el espacio inferior de tabiques y permite integrar el resto de usos en un único espacio continuo y libre de servidumbres constructivas.
Para la construcción del proyecto hubo que proceder al derribo integral de la planta primera de un edificio, previamente ocupado por servicios sociales. El estado original del inmueble era tan ruinoso que solo se dejaron en pie los muros medianiles de carga y los forjados desnudos de suelo y techo. La contención en el presupuesto guió todo el proyecto para mejor servicio a una joven pareja.